Planification 2D/3D
Orma Swiss SA vit avec son temps
En effet, notre société s’adapte et optimise continuellement l’utilisation des nouvelles technologies. C’est donc tout naturellement que la planification 2D et modélisation 3D a été intégrée dans nos offres, aussi bien que les visites virtuelles dans les espaces. L’objectif est de permettre aux clients de mieux visualiser, voir de se projeter dans ce que pourrait être leurs futurs espaces de travail.
Nos spécialistes se tiennent à la disposition de notre clientèle pour un coaching personnalisé.
Visites Virtuelles
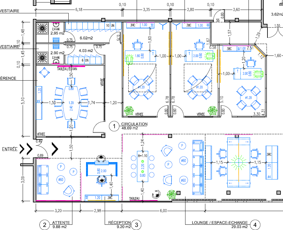
Planification 2D
Le plan 2D est utilisé pour une représentation précise du projet. Il s’agit d’une vue à plat de ce à quoi ressemblera une maison.
Bien sûr, il est possible de visualiser les objets dans l’espace, mais il manque une visualisation spatiale. C’est comparer une photo par rapport à une sculpture. Vous ne pouvez pas retourner une photo et la voir sous un autre angle.
Un plan en 2D, tout comme une photo, permet à votre client un seul point de vue. Il est donc idéal pour un plan de base, pour une idée approximative de l’endroit où les objets devront être placés.
Mais est-il assez convaincant lorsque votre client se prépare à faire l’un des plus gros investissements de sa vie ?
Modélisation 3D
La 3D est maintenant la norme : les jeux vidéo, la réalité virtuelle, les escape games, les aménagement de bureaux….
La 3D est ce à quoi nous sommes habitués. L’oeil reconnaît facilement les images en 3D, nous pouvons les interpréter et nous y immerger. C’est une expérience interactive.
Virtuellement, vous pouvez faire pivoter un design, voir de multiples perspectives, manipuler mentalement les objets… La 3D est un atout de communication facile à comprendre.
Tout ce qui est représenté dans votre conception 3D garantira l’exactitude de vos propos et une entente globale de la représentation entre votre commercial et votre client.
Et vous, quelle est votre vision ?
Quelque soit votre problème, besoin ou envie, Orma Swiss SA saura déployer son expertise pour vous aider à atteindre votre vision.
Notre approche innovatrice et individuelle de chaque projet est la clé de notre succès.
Parlons-en!
Ensemble pour une meilleure qualité de vie au travail, Depuis 1948, nous sommes constamment à la recherche de la solution idéale et aménageons les espaces de nos clients avec passion et originalité.
Nos liens
Boutique en ligne
Besoin d'aide ?
- +41 (0)848 848 849
- info@orma.ch